
-AIR PULSE ÁýÁø±â´Â ÁýÁøÀ²ÀÌ ³ô°í ó¸® °¡½º·®ÀÇ ¹üÀ§µµ ±¤¹üÀ§ÇØÁ® ¾î¶°ÇÑ ¿ë·®µµ 󸮰¡ °¡´ÉÇÏ¸ç Æ¯È÷ ¿©°úÆ÷³ª ´õ½ºÆ® Åо±â ¹æ½ÄÀÇ Áøº¸·Î ³ÐÀº ¹üÀ§¿¡ °ÉÃÄ Àû¿ëÀÌ °¡´ÉÇÕ´Ï´Ù.

Á¦Ç°Æ¯Â¡
Diaphragm Valve ÀÛµ¿¿¡ ÀÇÇÑ ¼ø°£ÀûÀÎ ¼¼Á¤ÀÌ ÀÌ·ç¾îÁö¹Ç·Î ¾Ð·Â¼Õ½ÇÀÇ º¯µ¿ÀÌ Àû¾î ¾ÈÁ¤µÈ ¿¬¼Ó ¿îÀüÀÌ °¡´É
Air pulse ¹æ½ÄÀº ÁýÁøÀ²ÀÌ ³ô°í ó¸® dz·®¿¡ ºñÇØ ¿©°ú¸éÀûÀÌ Àû¾î ¼³Ä¡°ø°£À» Àû°Ô Â÷Áö
ÁýÁø±â ³»ºÎ¿¡ Ãæµ¹ÆÇ(Buffle plate)À» ÃëºÎÇÏ¿© ±â·ùÀÇ ºÐÆ÷¸¦ ±ÕÀÏÇÏ°í ¿Ï¸¸ÇÑ »óÅ·ΠÀ¯ÁöÇÏ¸ç ¹Ì¼¼ÀÔÀÚ¸¦ Bag Filter¿¡ ±ÕÀÏÇÏ°Ô ºÎÂø½ÃÄÑ ÇÊÅ͸¶¸ð ¹× Àçºñ»êÀ» ¹æÁö
À¯Áöº¸¼ö°¡ °£ÆíÇÑ Top Access¹æ½Ä
Á¦Ç°¿ëµµ
¸ñÀç°øÀå, ½Ã¸àÆ®°øÀå, Á¦¾à°øÀå, Á¦ºÐ°øÀå, »ç·á°øÀå, ºñ·á°øÀå ¿Ü
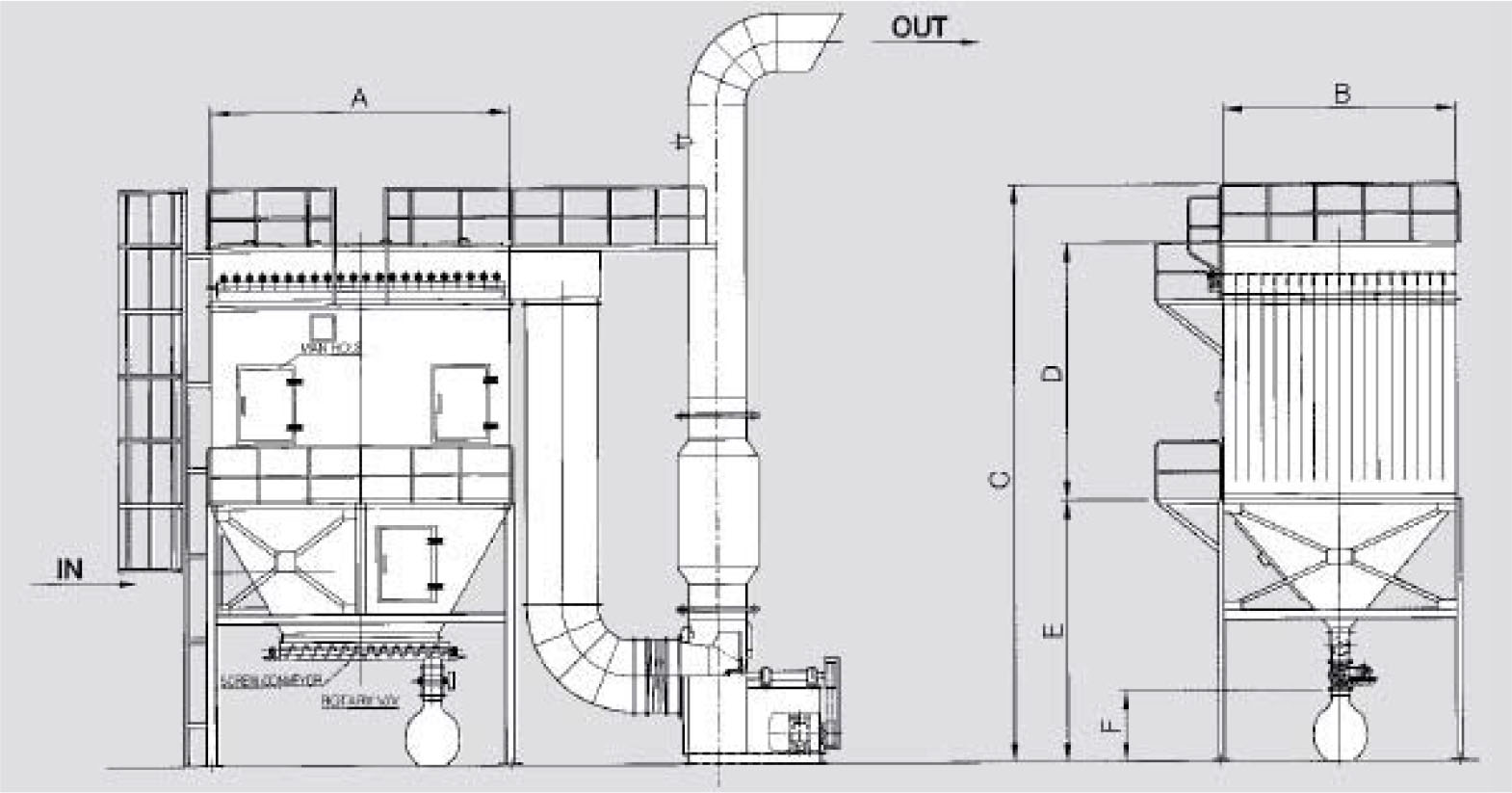
Á¦Ç°µµ¸é(Ç¥ÁØÄ¡¼ö)

| Çü ½Ä | DB-50R | DB-60R | DB-70R | DB-80R | DB-90R | DB-100R | |
|---|---|---|---|---|---|---|---|
| dz·®(§©/min) | 80 | 100 | 150 | 200 | 250 | 300 | |
| Á¤¾Ð(m mAq) | 280 | 280 | 280 | 280 | 280 | 280 | |
| MOTOR(Kw | 7.5 | 11 | 15 | 18.5 | 22 | 30 | |
| FILTER | ¿©°ú¸éÀû(§³) | 44 | 58 | 78 | 118 | 141 | 164 |
| ¼ö·® | 36 | 58 | 78 | 118 | 141 | 164 | |
| ±æÀÌ | ©ª156¡¿2500L | ©ª156¡¿2500L | ©ª156¡¿2500L | ©ª156¡¿2500L | ©ª156¡¿3000L | ©ª156¡¿3000L | |
| ´ÙÀ̾ÆÇÁ·¥ ¹ëºê | 6 | 6 | 8 | 11 | 12 | 14 | |
| AIR ¼Òºñ°ø±â·® N §¤ /min | 108 | 120 | 160 | 240 | 240 | 280 | |
| R/V MOTOR | 0.4 Kw °¨¼Ó MOTOR | ||||||
| DIMENSION(mm) | A | 1410 | 1620 | 1746 | 2720 | 2720 | 3176 |
| B | 1536 | 2146 | 2146 | 2146 | 2146 | 2146 | |
| C | 6700 | 7060 | 7370 | 7900 | 8300 | 8700 | |
| D | 2850 | 3100 | 3100 | 3100 | 3500 | 350 | |
| E | 2850 | 3960 | 3270 | 3800 | 3800 | 4200 | |
| F | 1000 | 1000 | 1000 | 1000 | 1000 | 1000 | |
* º» »ç¾çÀº ÀϹÝÀû ±âÁØÀ¸·Î ÇöÀå Á¶°Ç ¹× ºÐÁøÀÇ Æ¯¼º¿¡ µû¶ó »ç¾çÀÌ º¯°æ µÉ ¼ö ÀÖ½À´Ï´Ù

| Çü ½Ä | DB-110SR | DB-120SR | DB-130SR | DB-140SR | DB-150SR | ||
|---|---|---|---|---|---|---|---|
| dz·®(§©/min) | 300 | 350 | 400 | 500 | 550 | ||
| Á¤¾Ð(m mAq) | 300 | 300 | 300 | 300 | 300 | ||
| MOTOR(Kw) | 30 | 37 | 45 | 55 | 55 | ||
| FILTER | ¿©°ú¸éÀû(§³) | 164 | 188 | 235 | 282 | 329 | |
| ¼ö·® | 112 | 128 | 160 | 92 | 224 | ||
| ±æÀÌ | ©ª156¡¿3000L | ©ª156¡¿2500L | ©ª156¡¿2500L | ©ª156¡¿2500L | ©ª156¡¿3000L | ||
| ´ÙÀ̾ÆÇÁ·¥ ¹ëºê | 14 | 16 | 20 | 24 | 28 | ||
| AIR ¼Òºñ°ø±â·® N §¤ /min | 280 | 320 | 400 | 480 | 560 | ||
| R/V MOTOR | 0.75 Kw °¨¼Ó MOTOR | 1.5 Kw °¨¼Ó MOTOR | |||||
| DIMENSION(mm) | A | 3176 | 3586 | 4506 | 5326 | 6246 | |
| B | 2146 | 2146 | 2146 | 2146 | 2146 | ||
| C | 7960 | 7960 | 7960 | 7960 | 7960 | ||
| D | 3500 | 3500 | 3500 | 3500 | 3500 | ||
| E | 3460 | 3460 | 3460 | 3460 | 3460 | ||
| F | 1000 | 1000 | 1000 | 1000 | 1000 | ||
* º» »ç¾çÀº ÀϹÝÀû ±âÁØÀ¸·Î ÇöÀå Á¶°Ç ¹× ºÐÁøÀÇ Æ¯¼º¿¡ µû¶ó »ç¾çÀÌ º¯°æ µÉ ¼ö ÀÖ½À´Ï´Ù